Installations

 

House's exterior (original state).

There is not very much information found about the installations of the house. That being the case, this section is based in different hypothesis result from the analysis of the actual state of the building and pictures of its original state.

In a regular building (that is resting in the terrain), the installation connections with the general network do not usually become a bigger problem than following the rules of separation distances, depths, order, or other matters, as they emerge from the land directly to the floor slab. But in this case, the house is detached to the land, suspended in the air only touching the terrain by the two ends of the arch in the structure.

Also, the water stream is a barrier that divides the land by its half, what becomes a problem in the case of digging under it the installations canalizations to the building. For example, the sanitation network may be allowed to be buried in depth under the water stream if needed (although it would be difficult to register the pipes if required by maintenance issues), but it should be avoided for the electricity network, because if there is contact with the stream's water there could be a major issue, like a short circuit.

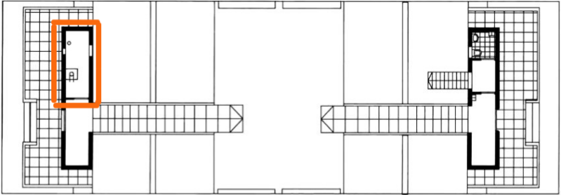
In the house we see an installation room in its low level, next to the staircase, in the NW corner. Analyzing the building's structure, we can guess that the installations may get there directly from the general network and to the house's interior through the first floor slab.

Low level floor plan, marking the installation room.

House's exterior (original state), marking access of installations (probably water meter).

We can know for sure that the house was connected from its origin to different installation networks:

  • Electricity: Looking at the old pictures, we see that they had electric lamps hanging from the interior walls. Also, in the virtual tour of the house in google maps, we see the house had electric outlets in many rooms.
  • Sanitary water: Following the building plans, there were two bathrooms and a kitchen in the first floor, and another bathroom beside the service stairs in the low level, all of them using water. 
  • Sanitation: Having the building the use of water, as a consequence the use of a sanitation network is needed.
  • Ventilation: There are a couple of air vents seen at the top of the interior walls that may come from the roof top, where some installation ducts are seen.
  • Heating: The materials of the building would have made it to be a really cold place during the winter. To warm up the house, in the first floor, they had installed two fireplaces, and there are heaters installed all around the building's perimeter.

There is no evidence of telephone line or other services, although they would probably had access to them as the family was from the upper class. Also, there may have been a doorbell in the front entrance to the house as the land was not originally fenced, but it is not found.

Crea tu propia página web con Webador